1項目背景
水環境質量已經成為城市發展和生活環境改善的重要條件,合肥市斑鳩堰河綜合治理工程已展開多年,雖然水質略有改善,但斑鳩堰河小流域污染仍較嚴重,上游水環境污染問題日益突出,水質總體處于劣Ⅴ-Ⅴ類。
2項目概況
斑鳩堰河小流域位于安徽省合肥市西北,派河左岸支流之一,行政區劃主要屬合肥市高新區,流域總面積28.34km2,河長6.48km,北靠大蜀山,東、西分別于與王建溝小流域、岳小河小流域相接,南入派河。本工程通過實施水環境治理、水生態修復、水資源利用、水安全保障、水管理提升等工程和措施,使水質達標、水生態健康,斑鳩堰河小流域建設成綠色和諧、生態宜居、美麗休閑小流域。
3設計方案
按照“目標引領、問題導向、總量控制、整體研究、系統設計”的總體思路,通過對規劃的分析,明確小流域功能定位;依據水功能區劃和考核管理要求,合理確定斑鳩堰河水環境綜合治理技術方法及組合。
一、水安全保障
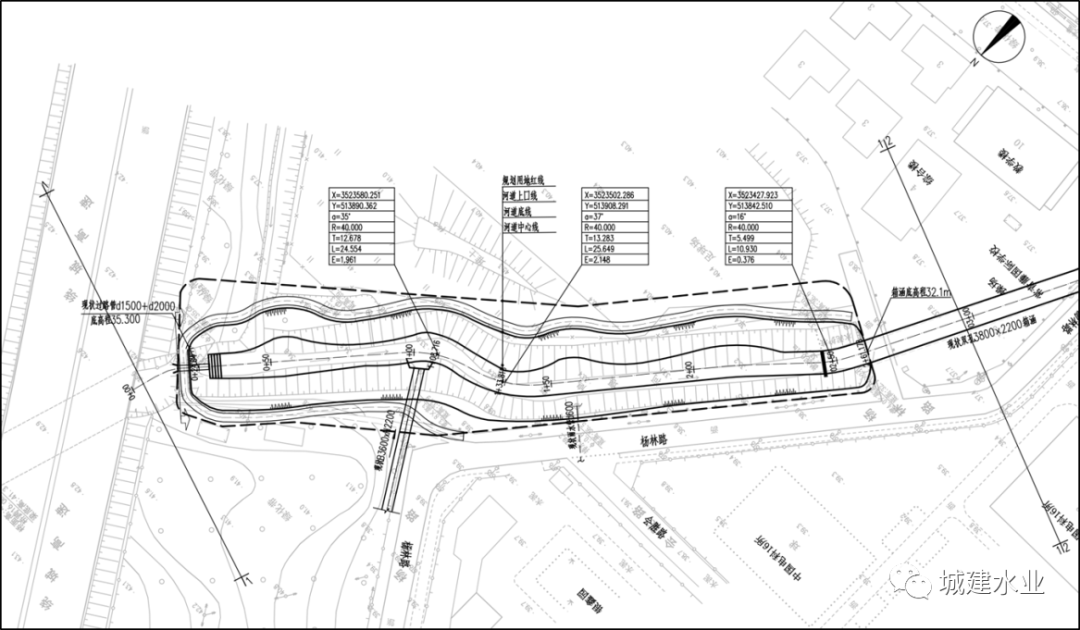
(1)浮山路渠(繞城高速-望江西路)渠道改造
現狀河道岸坡裸露土層,右側岸坡上有堆土,底淤積較為嚴重,雜草叢生;邊坡不穩定,存在安全隱患,兩邊岸邊坡約1:1~1:2左右,現狀平均坡降為13‰,洪峰流量為55m3/s,平均流速是4.62m/s。

本次設計綜合考慮河道流量變化,以及河道現狀及流域范圍內用地標高,設計河道縱坡為1‰。根據河道現狀情況和“親自然河道”理念,減少現狀河低坡降,減少硬質護砌,保持河道斷面寬窄有度,增加跌水曝氣。

在河道內合適位置設置清水泵,將河水抽至生物凈化渠,河水在生物凈化渠凈化后,再使河水從高處跌落回河道中,增加河水中的含氧量。

二、水環境治理
(1)完善初期雨水截流工程
現狀僅在浮山路渠(望江西路-習友路)兩側設置初雨截流管,浮山路渠上游排口未截流;截流井采用拍門防倒灌,拍門易閉合不嚴,發生漏水現象;東支渠僅在箱涵出口末端設置截流,截流效果差。

浮山路渠現狀初雨截流管道d1400,坡度2‰,最大流量2.3m3/s,浮山路渠總初雨截流量為4.4m3/s,設計截流主干管管徑為d500~d1200mm,設計截流支管管徑為d500~d800mm,如圖所示:

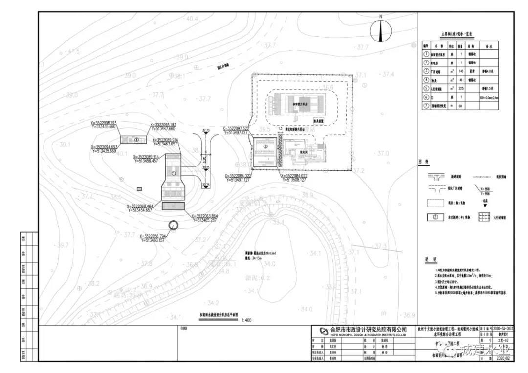
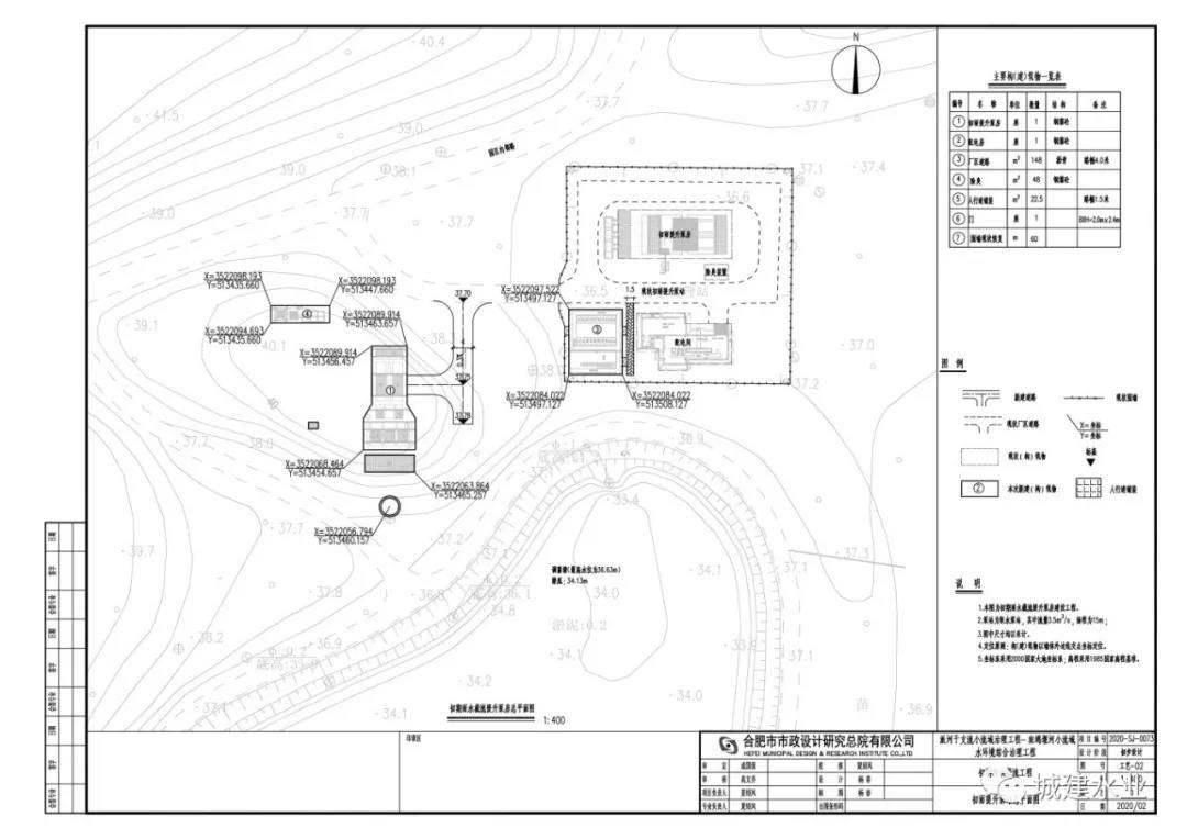
設計新建2.1m3/s初雨提升泵站,現狀初雨提升泵站保留利用。

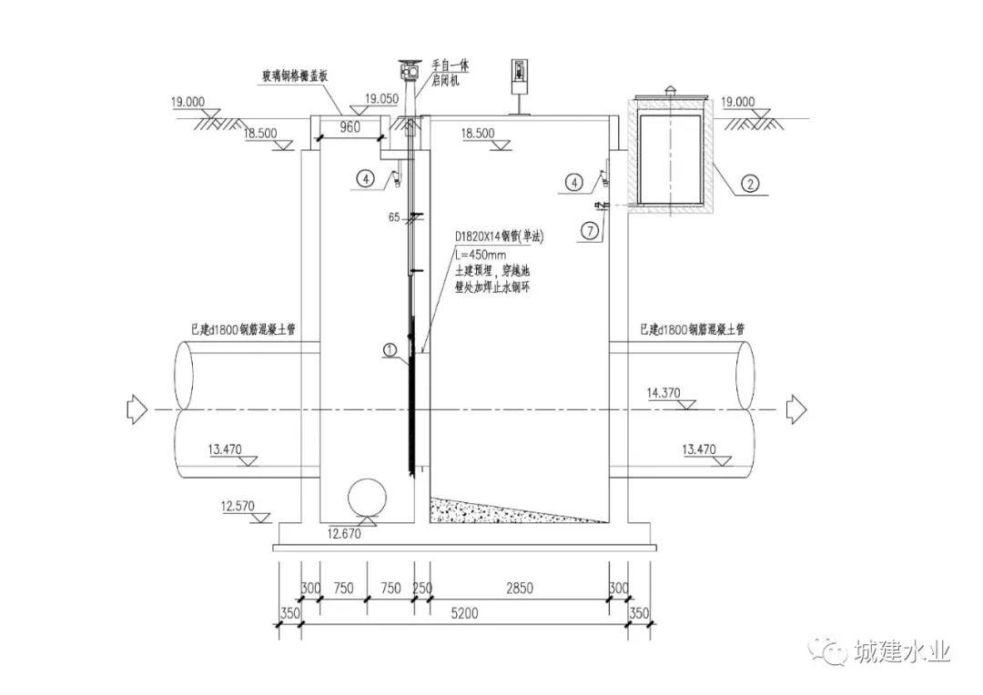
(2)現狀初雨截流井改造
由現狀截流井采用拍門形式,經現場檢測,淹沒式截流拍門基本不能閉合嚴密,旱季大量污水進入河道。根據檢測結果,設計更換14處截流井拍門,設計在截流井內將原浮筒拍門拆除后跟換電動閘門,設置液位儀,根據河道及雨水管道內的雨水液位變化自動啟閉閘門,從而實現旱季污水不進入河道,河道內的河水不進入初期雨水截流管道。

三、水生態修復
(1)微孔曝氣增氧
微孔曝氣增氧系統通過將氧氣通過曝氣輸送管輸送至水體內,增加水體溶氧量,充足的溶氧可加速水體底層沉積的污泥、水體動植物殘體、散落和剩余編制的餌料以及魚類排泄物等有機質的分解,轉化為微生物,使水體自我凈化功能得以恢復,建立起自然水體生態系統,使水活起來。

(2)沉水植物
沉水植物是指植株全部或大部分沉沒于水下的植物,是水體生物多樣性賴以維持的基礎,它的恢復是水生態修復的關鍵,其所產生的環境效應是生態系統穩定和水環境質量改善的重要依據。選用沉水植物因具有治理效果好和易管養等優點,避免出現水生植物大面積無序繁殖問題,以苦草為主。

四、水資源利用
(1)生態需水量計算:
常用的生態需水量計算方法為Tennant法。

設計考慮選擇30%年平均流量作為生態基流需水量,總需水量為4800m3/d,因燕子河路排口就地處理設施可提供500m3/d補水量,故補水量定為4300m3/d。

生態補水工程利用補水泵站從柏堰湖水庫分別提水至浮山路渠,補水泵站位于柏堰湖東側,泵站規模4300m3/d。補水管沿浮山路向北,補水點設置浮山路渠與楊林路交口上游10m,補水管徑為DN200,補水管長2.0km。

五、水管理提升
設計建立智慧流域水務平臺,并新增6處檢查點位,其中河道斷面監測點2處、管網監測點4處,除監測功能之外,平臺設計標準滿足流域智慧管理的需求,同時具備模塊擴展和向其他平臺對接的條件。

4結語
城市水環境治理及水質保護影響深遠、意義重大,但是目前眾多水環境項目只重視項目建設,往往忽視了后期運營維護更為重要,建議本工程后期采用設計施工+運營總承包模式(EPCO)模式,后期主要進行智慧水務平臺搭建、項目運營管理,用先進的監測平臺系統和運營管理對改善水環境進行維持工作。












