導讀
截至2020年底,全國地級及以上城市2914個黑臭水體消除比例達到98.2%。“十四五”期間,生態環境部將繼續以水生態保護修復為核心,鞏固深化碧水保衛戰成果,積極推進美麗河湖保護與建設。
2020年10月,中國城鎮供水排水協會發布《城鎮水務2035年行業發展規劃綱要》,其在城鎮水環境2035年總體目標中提出在徹底消除黑臭水體基礎上,提升水體景觀和游憩功能,營造優美宜居的城鎮水生態環境,人體可直接接觸類或休閑娛樂類城鎮水體比例不低于80%,有條件的地區向更高的生態環境目標邁進。
近年,政策推動下,眾多城鎮河道治理后煥發新生,黑臭水體華麗轉身為城鎮中心地區清水綠岸的新景觀帶,人水和諧親近,體現了人民城市為人民的理念,是城鎮更新建設中的關鍵點睛之筆,也是行業發展規劃目標方向。
黑臭水體治理手段主要有污染源控制及治理,水動力改善及水力調控,水質凈化與生態修復,綜合管理及工程運行與維護等。控源截污是河道治理首要步驟,相對于更高標準的景觀用水需求,河道水質往往仍然無法滿足要求。在生境條件差和場地空間限制的城市中心,無法實施原位處理修復,且無再生水系統補給時,建設旁路處理的水體凈化工程是必要的,以進一步提升水體水質,滿足景觀補水需要。凈化工程本身作為長期治理措施時,需要考慮與周邊景觀的有效融合。
本案例為劣V類水源條件下,在生境和場地限制的城市中心建設旁路處理的水體凈化工程,構建生物浮濾池為核心的多級處理流程,主體工程置于地下,滿足周邊景觀要求,巧妙實現工藝過程融合,豎向疊合和平面貼合,出水濁度小于1.0 NTU,氨氮去除率大于40%,達到高標準景觀水要求。
1、項目基本情況
1.1項目概況
D江改造規劃后定位為城市中心地區的新景觀帶,形成區域內新的城市級商業和文化博覽中心。D江水質凈化工程即為水質凈化處理后,回流至D江,作為河道景觀水。
1)水量目標:1.5 m3/s,每天運行16 h。
2)用地條件如下。
(1)地下式:工程用地上部設置市民活動廣場,布置綠化及運動場所,與周邊景觀相融合,主體構筑物必須設置于地下。
(2)場地小:地下占地面積僅為2 490 m2(含圍護用地),地上占地面積僅約為500 m2。
1.2進出水水質
1.2.1原水水質分析
D江水質凈化工程原水為劣V類水質,主要污染物有藻類、懸浮物、氨氮、五日生化需氧量等。水源水質五年統計數據情況如下。
(1)藻類平均值達到300萬~500萬個/L;
(2)顆粒懸浮物SS平均值≤27 mg/L;
(3)氨氮平均值為5.75 mg/L,最高值為6.44 mg/L,地表水V類標準限值為2 mg/L;
(4)BOD5平均值為13.72 mg/L,最高值為21.70 mg/L,地表水V類標準限值為10 mg/L;
(5)溶解氧平均值較低,約為1.5 mg/L,地表水V類標準限值為2 mg/L。
1.2.2出水水質要求
出水水質達到無嗅、無味、清澈的總體目標,主要指標應優于《地表水環境質量標準》(GB 3838—2002)的Ⅴ類標準和《城市污水再生利用景觀環境用水水質》(GB/T 18921—2019)的娛樂性景觀環境用水(河道類)標準。
本工程廢水直接排入市政管網,由市政污水處理廠統一處理。
1.3工程建設難點
(1)原水差,去除對象種類多,出水標準高
原水氨氮、有機物高,溶解氧低還有藻類干擾,僅單座濾池或氣浮等單一工藝過程難以完成工程目標,多種處理工藝手段的綜合利用必然是不可或缺的。
(2)用地小,且主體位于地下
工程地下部分場地面積僅相當于普通濾池,需要布置主體處理構筑物和地下提升泵房,還需安排上下人流、物流通道。
綜上,考慮復雜原水、場地空間受限和高標準出水的工程條件和目標,工藝選擇應因地制宜,并綜合應用多工藝組合,相應的工藝布置也需要面對較高挑戰。
2、主體工藝選擇及組合
2.1工藝思路分析
2.1.1工藝路線
工藝處理主要去除目標為藻類、濁度、氨氮和微生物等,需要綜合懸浮物截留、生物除氨、化學消毒等不同處理工藝,提升協同效能,實現出水水質穩定達標。
有限地下空間條件下,工程設計必須要創新工藝組合和巧妙綜合布置,實現小空間高效能的綜合效應。
工藝路線針對性選用氣浮法+生物法+微絮凝過濾+光催化氧化及次氯酸鈉消毒的組合工藝,達到效能倍升效果。
(1)氣浮法加強藻類和其他懸浮物去除
藻類密度小,不易沉降,而氣浮法去除水中難以沉降懸浮物較有優勢,現已廣泛應用于藻類和其他懸浮物的去除。氣浮法還可以防止藻類堵塞濾池,減輕濾池截留負荷,并利用其氣提作用,部分去除水中色度。
前加氯等預氧化措施也可以殺滅水中藻類,但工藝處理停留時間較短時,余氯濃度會較高。考慮后續工藝還需要依靠生物作用去除氨氮、有機物等,應避免余氯影響,不能使用前加氯等預氧化措施。
(2)微絮凝直接砂濾+氣浮保證出水濁度
砂濾與氣浮相結合形成浮濾池,可以適應的原水濁度范圍更寬,總體運行負荷更高,出水效果更優。在進水濁度不高情況下,微絮凝直接過濾+氣浮可以長期穩定運行,出水濁度可在1 NTU以下。
除濾池本身濾料粒徑級配和濾層厚度,以及進出水分配均勻等關鍵因素外,其前部來水水質改性對于保證濾池出水水質也非常關鍵。過濾理論認為過濾主要是懸浮物與濾料之間黏附的結果。因此,來水懸浮物加藥改性,提高黏附性能至關重要。同時對于無沉淀的直接過濾工藝,與沉淀工藝對絮凝的要求不同,絮體顆粒不宜過大,粒徑大致為40~60μm,以便于深入濾層深處,從而提高濾層含污能力,防止過早堵塞濾池。氣浮工藝對于微絮凝的要求與直接過濾相同,去除改性后的小絮體效果更佳,過大絮凝難以氣浮分離。綜合過濾和氣浮需求,考慮在前部設置混合絮凝設施,增強原水過濾性能,同時設計絮凝時長約3~5 min,以避免絮體過大,影響過濾和氣浮效果。
(3)生物法去除水中氨氮
生物法中顆粒填料的氨氮去除效果一般優于纖維填料,沸石陶粒組合填料的氨氮去除效果高于單一陶粒填料,在水力停留時間為0.5 h條件下,沸石陶粒組合填料的最大氨氮去除負荷大約為0.44 kg NH4+-N/(m3?d),而陶粒填料的最大氨氮去除負荷約為0.37 kg NH4+-N/(m3?d)。沸石陶粒填料的出水濁度比陶粒填料更低、更穩定,但水損增長更快。
原水濁度較高時,沸石陶粒沖洗次數會過高,導致廢水量過大,沖洗排隊嚴重影響正常過濾,另沖洗過多會影響到濾層內生物量,反而影響生物處理效果。在陶粒已具有較高氨氮處理效果的條件下,工藝應首先保證濾池正常過濾沖洗,陶粒濾料運行更為可靠,而且還可以利用陶粒生產過程中的密度可控性,形成與砂層相適應的密度和粒徑的級配關系,提升濁度控制效果,并避免沖洗亂床問題。因此,濾料可以選用陶粒與砂層組合,保證氨氮與濁度的雙重處理效果。
生物陶粒作用同時也可以有效地降低BOD5。在淮河蚌埠生物預處理示范工程中,生物陶粒的BDOC去除率達到73.91%。
為了保證生物處理效果,水中還需要補充溶解氧。考慮充氧設備無法與氣浮和過濾工藝設于一池,需要獨立設置,而日常運行中跌水曝氣是一個水力過程,省去了曝氣控制管理的繁瑣工作,在充氧量需求較低時,不失為最佳選擇。趙軍采用跌水曝氣沸石床工藝,跌水曝氣復氧效果明顯,出水DO保持在3.5 mg/L以上,足以滿足微生物生長需要。試驗原水TN濃度為33~95 mg/L,TN去除率為35%~50%。跌水曝氣取代鼓風曝氣,節約能耗,降低工程費用和運行成本。
(4)光催化氧化保障生物安全和降低氨氮,次氯酸鈉為備用。如原水氨氮過高,光催化氧化工藝切換為折點加氯,去除氨氮和保證消毒。
(5)廢水滿足排入城鎮下水道水質標準
考慮無用地條件,經與管理部門協商,工程廢水直接排入市政管網。工程處理工藝主要是對水中懸浮物、氨氮和有機物的去除,其中:懸浮物出水濁度如為1 NTU,排水量約為產水量的5%,對應原水濁度27 NTU懸浮物濃縮約20倍,則排水懸浮物濃縮最高為520 mg/L;工藝中對氨氮、總氮類會直接予以減量,沒有濃縮效應,排水相對原水會更為改善;處理過程中有機物去除量,類比給水處理中完善的沉淀和過濾的較高去除率約60%,不考慮生化的去除,而僅僅保守估計濃縮去除量60%的20倍,對應原水水質BOD5最高值21.70 mg/L,則排水中BOD5最高為260 mg/L。其他指標濃縮效應較小。因此,工程廢水可以符合《污水排入城鎮下水道水質標準》(GB/T 31962—2015)。
2.1.2工藝流程
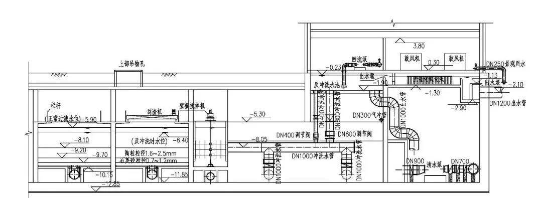
綜合各工藝能力分析,考慮工程場地狹小,多種工藝應當融合形成綜合池體來完成工程目標,故采用浮濾池(上海市政總院專利技術)處理工藝,并提升濾料性能,采用陶粒層取代大部分砂濾層,形成氣浮生物濾池。進水端采用無需設備的跌水曝氣,易于與浮濾池相結合,出水采用光催化氧化法消毒,同時以次氯酸鈉折點加氯為備用,出水端增設跌水曝氣提升出水溶解氧量,提升出水水質。工藝流程以氣浮生物濾池為核心,綜合為跌水曝氣+微絮凝+氣浮生物濾池+光催化氧化消毒(次氯酸鈉備用)+跌水曝氣的組合工藝。工藝流程如圖所示。

2.1.3集約化組合設計
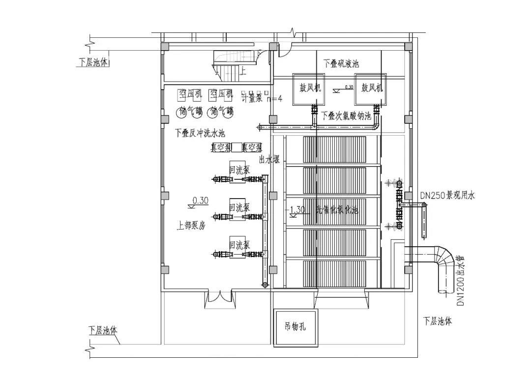
工程主體置于地下,以保證景觀用地,營造宜人休閑環境。在考慮高程銜接和場地布置條件下,混合絮凝、浮濾池、氣浮溶氣和釋氣設備、清水泵、沖洗排水泵等置于地下層,其余溶氣回流泵及空壓機系統、反沖鼓風機、反沖洗水池、光催化氧化系統、加藥系統和控制用空壓機等置于地面層。有條件的主要設備置于地面,便于使用、管理和維護,同時可以減少地下空氣濕度大而導致的設備損害問題。
工程實現多種處理工藝過程融合,以及構筑物豎向空間疊合及平面布置緊密貼合。
(1)工藝過程融合
多種工藝過程的混合、絮凝、生物、氣浮與過濾同池融合,尤其是氣浮生物濾池的利用,氣浮與生物、過濾等多工藝過程實現同池面的上下過程同步處理。出水的光催化氧化以及次氯酸鈉消毒也是同池面處理。整體工藝過程不簡化,布置融合化。
(2)豎向空間疊合
有限平面空間的條件下,構筑物輔助設備、出水及消毒通道、主體浮濾池分上、中、下三層布置,充分挖掘豎向空間。多層疊合布置兼顧了處理流程需求和設備層盡可能設于地面層的便利性。
(3)平面布置貼合
各處理單元平面直接貼合,順暢連通。混合絮凝串聯,出水直接進入浮濾池進水配水渠道,濾池出水清水渠道兼做泵房吸水渠,兼顧水流通道及水量調節功能,而出水消毒配水通道兼做反沖洗水池和回流水池。水處理流程除下部提升至出水,無專設連接管道,水損小,效率高。全平面緊湊布置,高效利用。
3、氣浮生物濾池特點
氣浮生物濾池是將氣浮與濾池相結合的一種水處理構筑物形式,利用濾層上部的水深空間作為氣浮的分離區,濾池上方設有刮渣設備,清除浮渣。另外在濾池的進水端設置氣浮接觸池。
翻板濾池是最適用于氣浮生物濾池的一種濾池形式。主要優勢表現于.
(1)翻板濾池的濾層上水深較大。利用濾層上部空間實現氣浮與過濾的上下分離,減輕過濾雜質負荷。
(2)翻板濾池不設中央排水槽。過濾布水布氣系統均布,與氣浮平面分布要求一致,工程占地也更為節約;
(3)濾池出水系統均衡性有助于氣浮分離。濾池布水布氣系統與濾層的均衡布水作用,遠優于常規氣浮下部出水的穿孔管,可以消除因下部出水不均衡導致上部氣浮分離效果差的影響。
(4)濾層穩定性高,便于設置生物陶粒和石英砂雙層濾料。由于沖洗排放的特性,翻板濾池無需擔心沖洗跑濾料,便利設置雙層濾料,分層效果更優,在常規石英砂濾料的基礎上,增設生物陶粒,強化濾池的生物處理能力,同時雙濾層共同保證出水濁度。
4、主要工藝設計參數
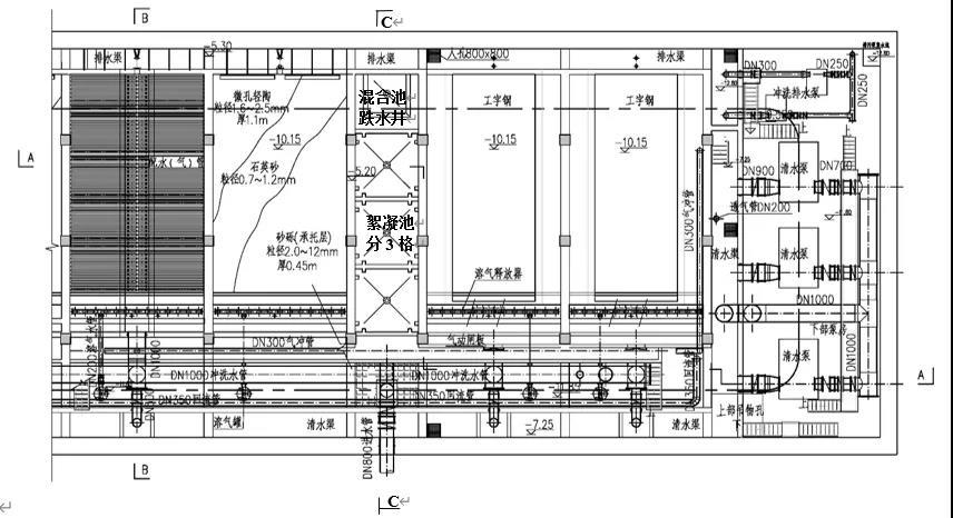
氣浮生物濾池下層平面尺寸為24.70 m×88.70 m,地下部分深約為12 m,共8格濾池,分為2組單排布置,圖2中僅表達了一組混凝絮凝浮濾池4格及下部泵房(設有清水泵和沖洗排水泵),左側延伸另外一組4格。地上部分占地面積僅約為500 m2。各平剖面布置如圖2~圖6所示。





為便于描述,本文依工藝過程介紹。
(1)混合絮凝
每組混合跌落池混合時間約為32 s,出水經堰跌落曝氣出水,跌落高度為0.40 m,為無需控制方式。每組絮凝階段時間總共約為3 min,分為3格,每格分別設絮凝攪拌機,每組共3臺,功率為2.2 kW,變頻調速。絮凝池出水形成細小礬花,為氣浮和過濾做好準備。
(2)浮濾池
浮濾池每組設置4格,對稱分置于混合絮凝池兩側。
氣浮生物濾池設有氣浮接觸區,氣浮分離區,濾池過濾區。濾池過濾區設于氣浮分離區下方。
氣浮接觸區:進水渠經進水后導流,釋放器上部區域。
氣浮接觸區上部上升流速約為20 mm/s。進水在接觸區與釋放器釋出的氣泡相接觸,完成氣泡與細小絮體的黏附后,形成帶氣絮粒,有利于下階段的分離。
氣浮分離區:濾池濾層的上部區域。
氣浮分離區單格平面面積為100.22 m2。帶氣絮粒上升形成浮渣,間歇性刮渣去除。水中較輕的懸浮物去除效果良好,尤其對于藻類和色度去除優于其他常規處理工藝。
濾池過濾區:也即濾層區域。
過濾區位于氣浮分離區下方,與氣浮分離區同平面尺寸。部分氣浮未分離的絮粒隨水流向下,經濾料過濾去除。
濾池正常濾速:7.63 m/h。
濾池采用雙層濾料:
上層陶粒濾料:粒徑1.6 mm~2.5 mm,d10=1.80,K80≤1.30,厚度為1.1 m,表觀密度小于為1.20 g/cm3,球形度0.90以上,比表面積(單位質量濾料的表面積):≥1.0×104 cm2/g,具有親水性,其他技術指標優于《水處理用人工陶粒濾料》(CJ/T 299—2008)。
下層石英砂濾料:粒徑哦0.7~1.2 mm,K80≤1.4,厚度為0.5 m,密度約為2.65 g/cm3。在氣浮處理基礎上,過濾水中濁度有保障。
雙層濾料上部的陶粒濾料可形成較好的生物作用,對水中氨氮和有機物均有較好的去除作用。
施工時,雙層濾料應分層裝填,下層砂層裝填清洗完畢后,再裝填上層陶粒,便于逐層清洗并減少亂層。濾料補充和更換可以采用水射器方式來替代人工操作,減少勞動強度和提高工作效率。
(3)溶氣回流系統
溶氣回流系統包括回流泵、溶氣用空壓機、溶氣罐和釋放系統。回流泵和溶氣用空壓機設于地面層,溶氣罐和釋放系統設于地下層。本工程設定回流比約為10%。
回流泵設有3臺,2用1備,單臺能力為280 m3/h,揚程為31 m,功率為45 kW。
溶氣供氣量為48 m3/h,設有空壓機供氣。
每格濾池外設溶氣罐1只,采用TR8型填料罐,自帶氣水界面控制。
每格濾池內設TVⅢ型溶氣釋放器,共13只,安裝于回流溶氣水管DN200上,置于接觸區下方。
(4)反沖系統
一般濾池沖洗緊接于排渣后,防止沖洗導致浮渣下沉至濾層內,影響運行和后期沖洗效果。
翻板濾池配套氣沖和水沖2種沖洗方式。
羅茨鼓風機設置2臺,1用1備,風量為6 015 m3/h,風壓哦5 m,功率為132 kW。
本工程在地上建筑回流水泵房下方設置反沖洗水池,供沖洗和回流水用。
濾池充分利用反沖洗水池的高度,重力流沖洗。因水沖洗分為小水量和大水量2種沖洗強度,采用2種沖洗立管分別為DN400和DN800,以便于流量控制。出水立管上分別設調流閥和流量計。
5、運行效果及經濟性分析
5.1運行效果
工程運行測試時,進水濁度短期達到100 NTU,遠高于調查數據,出水濁度仍可保持小于1.0 NTU。氣浮開啟,濾池運行周期明顯增長1倍以上,可達16 h,體現了浮濾池組合工藝的效能。在進水氨氮達到4.50 mg/L,生物處理和光催化氧化系統出水氨氮為1.50 mg/L,去除率達到66.7%;進水氨氮2.18 mg/L時,出水氨氮為0.193 mg/L,去除率超過90%。組合工藝中生物濾池氨氮去除量約占總去除量中的80%,生物掛膜成功,氨氮去除效果明顯。
D江水質凈化工程出水水質指標全面優于工程目標,運行良好穩定。
河道整治換水后,由臭水溝變成涓流溪水,成為市中心的親水休憩運動景觀帶,為城市增加了一抹靚麗,為廣大市民提供了和諧家園,工程取得了很好的社會效益。
5.2經濟性分析
工程總用地約為2 490 m2。集約化組合設計大幅減少了用地,僅僅考慮氣浮和濾池的融合,輔助加藥系統、反沖水池和光催化消毒系統等的疊建,總體用地為常規用地的50%,另還減少了建構筑間距和交通通道等用地。不計因此而減少的地下工程圍護工程量,構筑物土建工程費用減少約3 000萬元,同時大幅縮減了施工周期。
6、結論
(1)河道水質旁路強化處理是水體治理手段之一,可以補充景觀水源,提高景觀水體比例,建設清水綠岸的宜居宜業景觀帶。
(2)應對復雜原水中藻類、濁度、氨氮和微生物等污染物時,選擇懸浮物截留、生物處理和化學消毒的綜合工藝技術路線,構建氣浮生物濾池為核心的跌水曝氣+微絮凝+氣浮生物濾池+光催化氧化消毒(次氯酸鈉備用)+跌水曝氣的工藝組合,可以提升協同效能,實現出水水質穩定達標。
(3)有限地下空間條件下,工程設計必須要創新工藝組合和巧妙綜合布置,實現多種處理工藝過程融合,以及構筑物豎向空間上下疊合及單元布置緊密組合,創造小空間高效能的綜合效應。












